50% Off Delivery On Orders Over £300
Kent - Tel 01322-787312
London - Tel 020-8698-4064
Sound Shield Pro | Acoustic Fencing | 28mm | Domestic | 2.4m Wide
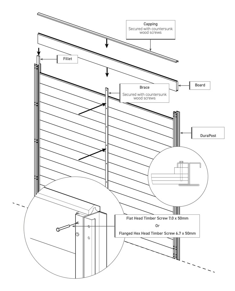
The Sound Shield Pro® 28mm tongue and groove acoustic timber fencing system is designed for quick and reliable installation using DuraPost® Commercial Posts. Its tongue and groove board design allows panels to slot together easily, providing a secure and consistent finish.
Each Pack contains
| Fence Length Up to | Amount To Order | Fence Length Up to | Amount To Order |
| 2.4m | 1 | 24m | 10 |
| 4.8m | 2 | 26.4m | 11 |
| 7.2m | 3 | 28.8m | 12 |
| 9.6m | 4 | 31.2m | 13 |
| 12m | 5 | 33.6m | 14 |
| 14.4m | 6 | 36m | 15 |
| 16.8m | 7 | 38.4m | 16 |
| 19.2m | 8 | 40.8m | 17 |
| 21.6m | 9 | 43.2m | 18 |
The Sound Shield Pro® 28mm tongue and groove acoustic timber fencing system is designed for quick and reliable installation using. DuraPost. Its tongue and groove board design allows panels to slot together easily, providing a secure and consistent finish.
Materials
Manufactured from high-quality UC4 Scandinavian Redwood (G4-2 grade) (70% FSC mix), the boards offer a warm reddish hue with a natural grain character. The timber is kiln-dried, precision-sawn to 28mm finished thickness, and then pressure-treated with Tanalith® E after machining to ensure full preservative absorption. This treatment significantly extends service life and makes the system highly suitable for long-term external use.
Performance & Compliance
Compliance References
SS-EN 1611-1 (Appearance grading of softwoods).
SS-EN 1313-1 / SS-EN 336 (Dimensional tolerances).
BS EN 335 (Durability of wood and wood-based products).
WPA Commodity Codes for preservative treatment.
Timber


| Material | Wood |
|---|---|
| Strength | Heavy-Duty |
| Panel Type | Acoustic Panel |
| Treatment Type | Pressure Treated |
| Treatment Grade | UC4 |
| Post Type | Metal |